建物2026年5月末堂々完成予定!!
《長泉町竹原 1期 新築戸建全1棟販売》
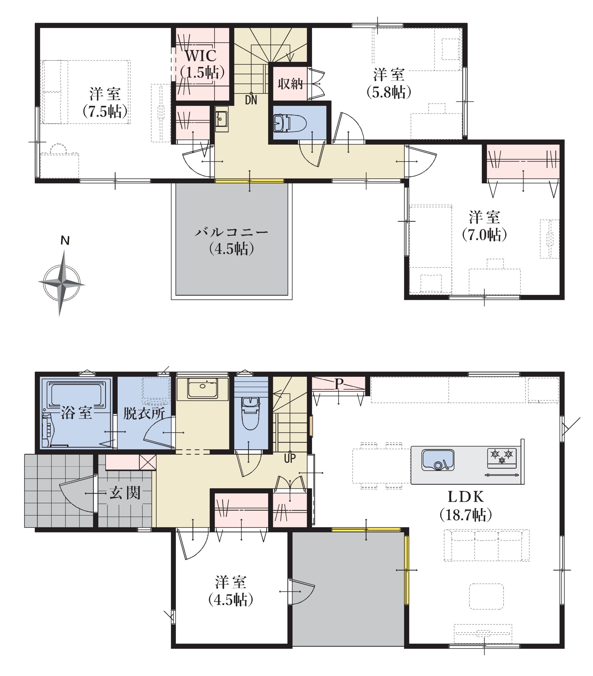
【敷地面積183m2超】×【建物面108m2超】×【カースペース3台】
※※完成まではお近くのモデルハウスをご案内いたします!※※
◆徒歩圏内にコンビニやスーパーがある便利なエリア。
◆洗面所には人気の乾太くん・ウルトラファインバブル付き♪
◆パントリーなど収納豊富でお部屋もスッキリ片付きます。
■■アカリエにおまかせください!■■
「住宅ローンが不安‥」
●勤続年数が短い方
●契約社員・派遣社員の方
●自営業の方
●カーローンなど現在お借入れのある方‥
経験豊富なスタッフがお客様目線で様々な方法をご提案します!
「遠方からの移住をしたい」
●土地勘がなくて不安な方
●時間がなくてなかなか現地に行けない方‥
静岡県東部に詳しい営業スタッフがご案内します!
気になる物件をまとめてご案内、内観を動画でご紹介など柔軟に対応可能です。
資料請求、現地ご見学はどうぞお気軽に♪
【明るい未来へ(株)アカリエ】 0120-748-600








